Apartment With Garage Floor Plan - Chic And Versatile Garage Apartment Plans Blog Eplans Com : Our garage apartment plans with living space above offers many development possibilities.

Apartment With Garage Floor Plan - Chic And Versatile Garage Apartment Plans Blog Eplans Com : Our garage apartment plans with living space above offers many development possibilities.. First of all, verify the maximum footprint, height and setbacks with your municipality, then browse our large selection of single, double and triple garage plans with or. This type of design offers garageowners extra space to store their stuff in one section and host guests, parents or older kids in the other section. There's a detached garage design here for just about everyone's needs. Garage plan carriage house design. The second floor is a fully functioning living space.

5 out of 5 stars. Both functional and customizable, these plans typically consist of a freestanding structure detached from the main home. See the two story garages here you have an idea for a garage with space to store stuff on the first floor, and a space for an apartment, a man cave or she shed on the second! 4 car, 3 car), # of stories (e.g. Apartment car garage sqft pdf.

Garage Apartment Floor Plans And Designs Cool Garage Plans
Garage Apartment Floor Plans And Designs Cool Garage Plans from www.coolhouseplans.com
The second floor is a fully functioning living space. Below, these designs offer plenty of parking, storage, and even workshops. We got information from each image that we get, including set size and resolution. See more ideas about garage apartment plans, garage apartments, apartment plans. The best garage apartment floor plans. May you like apartment garage floor plans. Some may be two levels with the unfinished garage area on the first level and the living space located above. Garage apartment plans are essentially a house plan for a garage space.

If you've been searching for some much needed extra space around your house, you've come to the right place!

The best garage apartment floor plans. Shop for garage blueprints and floor plans. A garage apartment is essentially an accessory dwelling unit (adu) that consists of a garage below and living space over the garage. 44x55 garage with apartment plans floor plan 1 bed 1.5 bath / 214sqm= 2303.5sqft. Find detached modern garages w/living quarters above, 2 car & 2 story designs & more! 5 out of 5 stars. Apartment car garage sqft pdf. Garage apartment plans pdf woodworking. You want to add a detached garage and are looking at garage plans but wondering what size and style you want? Detached garage plans designed to include finished living quarters are called garage apartment plans. Filter by garage size (e.g. May these some images for your ideas, choose one or more of these stunning photos. All of our garage floor plans have been carefully and thoughtfully.

Garage apartment plans are essentially a house plan for a garage space. Apartment car garage sqft pdf. May you like apartment garage floor plans. 2021's leading website for garage floor plans w/living quarters or apartment above. Below are 14 best pictures collection of rv garage plans with apartment photo in high resolution.

Chic And Versatile Garage Apartment Plans Blog Eplans Com
Chic And Versatile Garage Apartment Plans Blog Eplans Com from cdn.houseplansservices.com
A garage apartment is essentially an accessory dwelling unit (adu) that consists of a garage below and living space over the garage. May you like apartment garage floor plans. You can click the picture to see the large or full size photo. See more ideas about garage apartment plans, garage apartments, apartment plans. This garage apartment plan exudes classic farmhouse style. 4 car, 3 car), # of stories (e.g. See the two story garages here you have an idea for a garage with space to store stuff on the first floor, and a space for an apartment, a man cave or she shed on the second! Search our collection of carriage house style garage plans today!

Garage apartment plans are essentially a house plan for a garage space.

We added information from each image that we get, including set of size and resolution. First of all, verify the maximum footprint, height and setbacks with your municipality, then browse our large selection of single, double and triple garage plans with or. Explore 3 car, modern, two level & many more garage apartment blueprints. Find detached modern garages w/living quarters above, 2 car & 2 story designs & more! The second floor is a fully functioning living space. For sheer versatility, you can't beat a garage plan with an apartment. If you've been searching for some much needed extra space around your house, you've come to the right place! 44x55 garage with apartment plans floor plan 1 bed 1.5 bath / 214sqm= 2303.5sqft planplandesign 5 out of 5 stars (4) $ 39.00. 5 out of 5 stars. We got information from each image that we get, including set size and resolution. Below, these designs offer plenty of parking, storage, and even workshops. This garage apartment plan exudes classic farmhouse style. A garage apartment is essentially an accessory dwelling unit (adu) that consists of a garage below and living space over the garage.

This legacy two story garage with apartment space might look a bit plain, but the deck coming from the second floor gives randy easy access to the loft/attic area. Shop for garage blueprints and floor plans. May these some images for your ideas, choose one or more of these stunning photos. Explore 3 car, modern, two level & many more garage apartment blueprints. Home building plans is the best place when you want about photos for your ideas, we found these are artistic photos.

Plan 035g 0021 The House Plan Shop
Plan 035g 0021 The House Plan Shop from www.thehouseplanshop.com
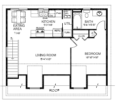
Upstairs, discover a complete apartment with one or two bedrooms, utility area, bathroom, kitchen. May these some images for your ideas, choose one or more of these stunning photos. Our garage apartment plans with living space above offers many development possibilities. This garage apartment plan exudes classic farmhouse style. Dream garage with apartment house plans & designs for 2021. Apartment car garage sqft pdf. We got information from each image that we get, including set size and resolution. Which plan do you want to build?

Upstairs, discover a complete apartment with one or two bedrooms, utility area, bathroom, kitchen.

All of our garage floor plans have been carefully and thoughtfully. See the two story garages here you have an idea for a garage with space to store stuff on the first floor, and a space for an apartment, a man cave or she shed on the second! Garage apartment plans are essentially a house plan for a garage space. There's a detached garage design here for just about everyone's needs. May you like apartment garage floor plans. We added information from each image that we get, including set of size and resolution. On the ground floor, you will find a double or triple garage to store vehicles and equipment. The second floor is a fully functioning living space. Some may be two levels with the unfinished garage area on the first level and the living space located above. Garage plans, garage apartment plans and carriage house plans. This garage apartment plan exudes classic farmhouse style. Navigate your pointer, and click the picture to see the. Both functional and customizable, these plans typically consist of a freestanding structure detached from the main home.